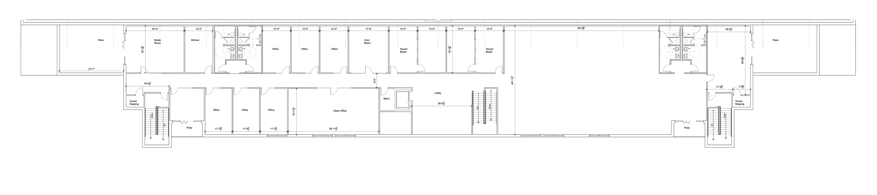
Offices are designed to meet the highest industry standards, tailored for creative professionals and built to fulfill their most ambitious vision. Equipped with Al-powered systems, they optimize workflow across pre-production, production, and post-production, seamlessly integrating all shared spaces and departments.



